• NEW

メゾン・グランブル201号室

  • NEW
  • おすすめ
  • 駅近
  • 駐車場つき
  • マンション
  • 駐車場込
  • 鉄筋系
  • 糸魚川
賃料 55,000円
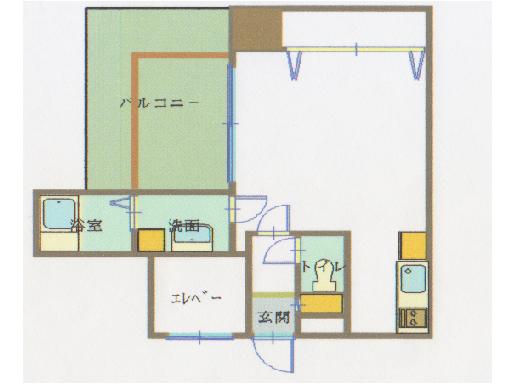
間取り 1K (洋9・K)
住所

新潟県糸魚川市大町2丁目5番2号

交通

糸魚川駅 徒歩3分

築年月 1995年10月
この物件について問い合わせる
物件情報
物件名 メゾン・グランブル201号室
所在地

新潟県糸魚川市大町2丁目5番2号

交通

糸魚川駅 徒歩3分

構造 鉄筋系 物件種別 マンション駐車場込
総戸数 12 築年月 1995年10月
間取り 1K (洋9・K)
面積(専有/延床/土地) 30.75㎡ その他面積 -
所在階/階数 2階 向き -
費用・契約情報
賃料 55,000円 管理費/共益費/雑費

共益費 0円

管理費 0円

その他月次費用 - 敷金/礼金

敷金/55,000円

礼金/55,000円

保証金/敷引/償却 - 敷金積み増し -
その他一時金 - 更新料

なし

その他費用

仲介手数料 60,500円

取引態様

仲介・媒介

保証会社

個人の場合原則あり

現況 募集中 入居時期 5月下旬
入居条件 -
備考 -
設備・周辺施設
設備・機能

エアコン1台

特徴 -
駐車場

1台込

学区

糸魚川小・糸魚川中

アクセスマップ

137.8609549539727

37.04527013728077,

この物件についてメールで問い合わせる







    お問い合わせありがとうございます!

    担当が確認後2〜3日中に返信させていただきます。

    トップへ戻る